Дома под ключ в Люберцах
Отзывы из Яндекс Карт
4.9
77 отзывов
Дополнительные услуги 88%
2 154 оценок
Комплектации 89%
1 535 оценок
Планировки 90%
2 484 оценок
Проекты 93%
2 231 оценок
С
Вениамин Кулешов14.01.2026 г.
Сначала сомневался, выбирал между ними и другой конторой, но менеджер Сергей толково всё разложил по полочкам, без навязывания. Дом 6х8 с мансардой под усадку сделали ровно в срок, который был в договоре. Через год, когда пришло время отделки, претензий по геометрии не было — брус лег как влитой.
С
Элеонора18.03.2025 г.
Хочу отметить не только великолепное качество постройки, но и потрясающую команду специалистов, которая всегда была на связи и готова была помочь советом или разъяснением на всех этапах нашего сотрудничества.
Отзывы из Google Карт
4.8
47 отзывов
Дополнительные услуги 88%
2 154 оценок
Комплектации 89%
1 535 оценок
Планировки 90%
2 484 оценок
Проекты 93%
2 231 оценок
С
Емельяна Андрианова25.04.2026 г.
Не обошлось без накладок, конечно. То саморезы не те привезут, то окна задерживаются. Но в итоге все решилось, и сейчас уже забываешь про эти мелкие неприятности.
С
Святослава Царёва25.04.2025 г.
Сомневались насчёт выбора между клееным и профилированным брусом, но консультанты компании подробно объяснили все нюансы и помогли принять оптимальное решение, за что им огромная благодарность.
Отзывы из 2гис
4.9
42 отзывов
Дополнительные услуги 88%
2 154 оценок
Комплектации 89%
1 535 оценок
Планировки 90%
2 484 оценок
Проекты 93%
2 231 оценок
С
Ефим К.08.03.2026 г.
Из-за работы постоянно отъезжал, не мог контролировать процесс. Менеджер звонил каждый понедельник, коротко рассказывал, что сделали и что планируют. Такой периодический отчет устраивал, чувствовал, что всё под контролем.
С
Тимофей Мясников09.02.2026 г.
Изначально планировал только баню 3,5х4, потом в процессе расширил до 4х5 с комнатой отдыха. «БрусДома» без проблем переделали смету и проект, доплатил немного.
С
Элла Лаврентьева17.08.2025 г.
Это был мой первый опыт строительства, и я очень переживала, но сотрудники компании настолько подробно и терпеливо всё объясняли, что все страхи быстро улетучились! В итоге я получила роскошный дом из бруса, который выглядит дорого и солидно, и при этом был построен в рамках запланированного бюджета.


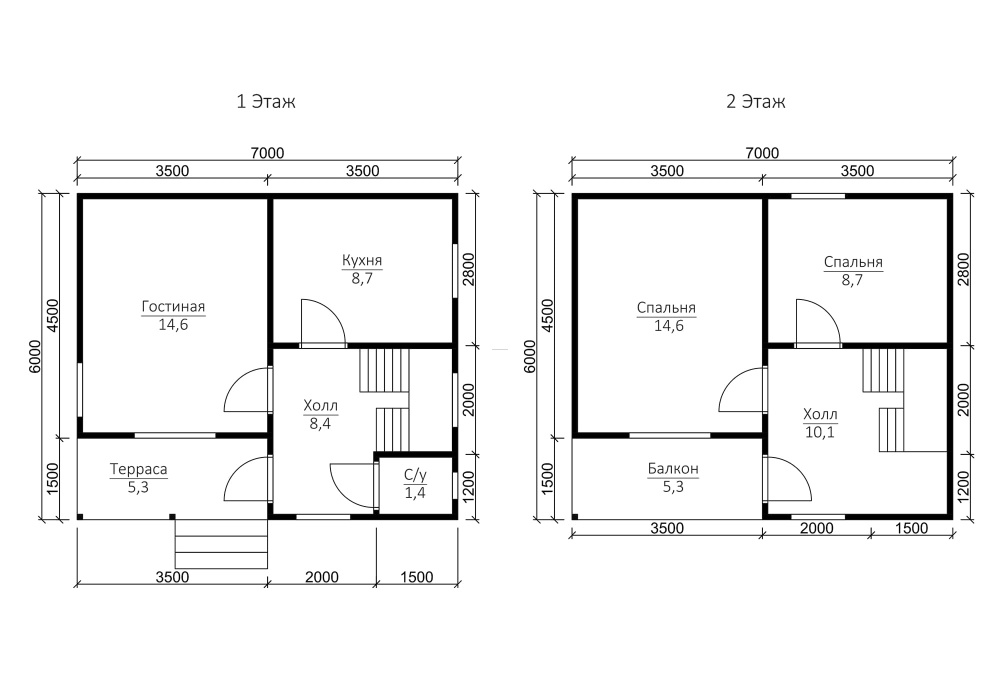
Проект №99 Каркасный дом 6х7 с балконом

каркас из строганой доски
Создайте свой план для этого проекта
и отправьте его нам на расчет в один клик.
Каркасный дом (150 мм) 6х7 Толщина утепления 150 мм 2320600 Заказать
Каркасный дом (200 мм) 6х7 Толщина утепления 200 мм 2490600 Заказать

Пользуйтесь нашим планировщиком, чтобы адаптировать готовый проект и получить личную планировку.

При помощи планировщика вы можете создавать эскизы, схемы, чертежи, планы дома с мансардой, эркером, с одной, двумя или тремя спальнями. В результате вы сможете получить проект с отличной планировкой, который на 100% отвечает вашим условиям.

Вы сможете выбрать тип крыши: двускатная, четырехскатная и вальмовая. Двухскатную крышу считают особенно востребованной у малометражных построек.

Популярные размеры домов: мини - до 50 м2 (чаще всего, 1 этажные); компактные - от 70 кв. М до 100 квадратов (обычно 2-этажные); большие дома - от 150 кв. М и свыше.

Предлагаем дуплексы - большие каркасные дома с 2-мя входами на 2 семьи. Эти дома строятся сразу для нескольких хозяев и делятся на две половины, для обоих половин - отдельный вход.


Наши работы

Перейти в галерею


Комплектация

Площадь застройки: 42 м2
Длина: 7 м
Ширина: 6 м
Общая площадь: 78 м2
Исполнение Под ключ (с отделкой)
Фундамент Свайно-винтовой или ж/б сваи (рассчитываются отдельно).
Гидроизоляция фундамента Рубероид в два слоя.
Основание (обвязка) Из обрезного бруса 150х150 мм. 150х200 мм. согласно выбранной толщине утепления. Торцевая доска строганая 45х145/45х195+/-5 мм. согласно выбранной толщине утепления. Обработка антисептиком.
Цокольное перекрытие Строганая доска камерной сушки 45х145/45х195+/-5 мм. с шагом 590 мм. Обработка антисептиком.
Пол черновой Обрезная доска камерной сушки 20х100 мм.
Влаго-ветрозащита чернового пола Мембрана Ондутис А100.
Внешние стены Стойки каркаса из строганой доски камерной сушки 45х145/45х195+/-5 мм. с шагом 590 мм. Верхняя двойная и нижняя обвязки из строганой доски камерной сушки 45х145/45х195+/-5 мм. Разгрузочный ригель из строганой доски 45х145+/-5 мм. Укосины из строганой доски 20х95 мм.
Перегородки Стойки каркаса из строганой доски камерной сушки 45х95+/-5 мм. с шагом 590 мм. Верхняя двойная и нижняя обвязки из строганой доски 45х95+/-5 мм. Разгрузочный ригель из строганой доски камерной сушки 45х145+/-5 мм. Укосины из строганой доски камерной сушки 20х95 мм.
Сборка каркаса На гвозди.
Высота от пола до потолка Дом одноэтажный: 2,5 м. Дом с мансардой: 1-ый этаж- 2,5 м.
2-ой этаж (мансарда)- 2,3 м.
Дом в полтора и два этажа:
1-ый этаж 2,5 м.
2-ой этаж 2,4 м. в полутораэтажном доме
2,5 м. в двухэтажном доме.
Внешняя отделка стен Имитация бруса камерной сушки, сорт АВ, толщиной 17 мм. Монтаж через строганый брусок камерной сушки 45х45+/-5 мм. (вентилируемый фасад). Влаго-ветрозащитная мембрана- Ондутис А100.
Внутренняя отделка стен, перегородок Евровагонка камерной сушки, сорт АВ, толщиной 12,5 мм. по строганой рейке 20х40+/-5 мм. либо ГКЛ 12,5 мм.
Отделка потолка Евровагонка камерной сушки, сорт АВ толщиной, 12,5 мм. по строганой рейке 20х40+/-5 мм. либо ГКЛ 12,5 мм.
Пол чистовой Шпунтованная доска камерной сушки толщиной 35-36 мм. сорт АВ. по строганой рейке 20х40+/-5 мм. либо шпунтованная ДСП 16 мм. по разряженной обрешётке из строганой доски камерной сушки 20х95+/-5 мм.
Утепление (пол, потолок) Минеральная вата Knauf 150/200 мм. согласно выбранной толщине утепления.
Утепление стен Плитный утеплитель Rockwool, толщиной 150/200 мм. согласно выбранной толщине утепления.
Звукоизоляция перегородок Плитный утеплитель Rockwool, толщиной 100 мм.
Пароизоляция (стены, перегородки, пол, потолок) Плёнка Ондутис R70. Дополнительная герметизация нахлёстов/примыканий пароизоляционной плёнки клейкой лентой Delta.
Окна Двухкамерные стеклопакеты ПВХ белого цвета, профиль 60 мм. В комплекте: отливы, подоконники, москитные сетки.
Двери Входная- металлическая, утеплённая (Россия). Межкомнатные- филёнчатые.
Наличники на окна и двери Наличник деревянный, строганый, камерной сушки 70-90 мм. с двух сторон.
Лестница (при наличии второго этажа) Деревянная, одно или двухмаршевая. Перила- заводские резные, балясины- заводские точеные, устанавливаются стартовые точёные столбы. Ступени 40х200 мм. Тетива лестницы- 90х140 мм.
Крыша Двускатная, ломаная или вальмовая в соответствии с проектом.
Стропильная система Выполнена из строганой доски камерной сушки 45х145/45х195+/-5 мм. Шаг установки стропил 590 мм.
Обрешётка Выполняется из строганой доски камерной сушки толщиной 20х95+/-5 мм. Шаг крепления обрешетки 350 мм. Контробрешётка выполняется из строганого бруска камерной сушки 45х45+/-5 мм. Крепится по стропилам (вентиляционный зазор).
Подкровельная мембрана Ондутис А100
Кровельное покрытие (на выбор) Металлочерепица 0,45 мм. Цвет на выбор.
Фронтоны (при наличии) Каркас из строганой доски камерной сушки 45х145/45х195+/-5 мм. Обшиваются имитацией бруса камерной сушки, сорт АВ, толщиной 17 мм. Монтаж через строганый брусок камерной сушки 45х45+/-5 мм. (вентилируемый фасад). Влаго-ветрозащитная мембрана- Ондутис А100. Монтаж вентиляционных решёток.
Свесы крыши Ширина 400 мм. Подшиваются вагонкой камерной сушки, сорт АВ.
Терраса/балкон (при наличии) Устанавливаются опорные столбы из строганного бруса камерной сушки 140х140 мм.
Отделка потолка террасы/балкона Евровагонка камерной сушки толщиной 12,5 мм. сорт АВ.
Пол террасы/балкона Шпунтованная доска камерной сушки толщиной 35-36 мм. сорт АВ.
Ограждение террасы/балкона Перила- строганая доска. Балясины- точеные, фигурные. Либо ограждение в скандинавском стиле. Устанавливаются ступени у входа.
Допуск на геометрические параметры Составляет +/- 50 мм по длине с каждой стороны.
Допускается стыковка имитации бруса, вагонки и половой доски По всему периметру стен дома (если ширина и длина дома более 6,0 метров). Вагонки и доски пола в каждой отдельной комнате.
Допуски по имитации бруса, вагонке, доске +/- 5 мм.
В стоимость включена Доставка комплекта материала в радиусе 500 км. от г. Пестова Новгородской области и сборка дома на вашем участке.
Гарантия 5 лет.
Бытовка строительная 2,0х3,0 м. каркасно-щитовая. Стоимость 23000 руб. Остаётся на участке Заказчика.
Туалет 1,0х1,0 м. каркасно-щитовой. Стоимость 12000 руб. Остаётся на участке Заказчика.
Генератор Стоимость аренды на весь срок строительства 15000 руб. ГСМ за счёт Заказчика.

Постройка каркасного дома может осуществляться в нескольких видах: под усадку, когда сруб отстаивается на протяжении некоторого времени и полностью под ключ.

Зимой лучше всего строить в холодную погоду, чтобы каркас не отсырел, в теплое время года - не в дождливую.

Оптимальными для дачи или сада стали дома на винтовых сваях, на нашем сайте вы увидите одноэтажные и полуторатажные дома.

Если дом строится для ПМЖ (постоянного проживания), предлагаем надежные и очень теплые коттеджи и дома на ленточных и плитных фундаментах.

Имеется 2 размера утепления: 200 мм и 150 мм. Каркасные дома с утеплителем двести миллиметров получаются теплее, но несколько дороже.

Дополнительные услуги


Дом из каркаса балконом, согласно плану 99 полутораэтажный с теплой двускатной строительной конструкцией крыши, обращает на себя повышенное внимание экологической чистотой, благодаря использованию OSB-плит, ваты базальтовой и минеральной, а это создает высокую теплоизоляцию, идеальный микроклимат в помещении. Нормы жилища составляют 6х7 м., суммарная жилплощадь - 78 кв.м.. Наша компания в кратчайшие сроки построит каркасник по персональному или типовому плану в Люберцах в оптимальное для вас время года и на выбранном вами типе грунта.

Популярные проекты


Дома из бруса с таррасой Каркасные дома 8х9 Бани из бруса 6х9
хит продаж
Тип:
Общая площадь: 2
1628100
от 1550600
хит продаж
Тип: с балконом, с большой террасой
Общая площадь: 2
2720100
от 2590600
хит продаж
Тип:
Общая площадь: 2
1670100
от 1590600
Дома из бруса

Заказать или задать вопрос



Заказать или задать вопрос

Заказать звонок