Проект №133 Большой каркасный дом 8х12 с четырьмя спальнями

каркас из строганой доски
Создайте свой план для этого проекта
и отправьте его нам на расчет в один клик.
Каркасный дом (150 мм) 8х12 Толщина утепления 150 мм 3590600 Заказать
Каркасный дом (200 мм) 8х12 Толщина утепления 200 мм 3860600 Заказать

Пользуйтесь нашим планировщиком, чтобы адаптировать готовый проект и получить личную планировку.

При помощи планировщика вы можете создавать эскизы, схемы, чертежи, планы дома с мансардой, эркером, с одной, двумя или тремя спальнями. В результате вы сможете получить проект с отличной планировкой, который на 100% отвечает вашим условиям.

Вы сможете выбрать тип крыши: двускатная, четырехскатная и вальмовая. Двухскатную крышу считают особенно востребованной у малометражных построек.

Популярные размеры домов: мини - до 50 м2 (чаще всего, 1 этажные); компактные - от 70 кв. М до 100 квадратов (обычно 2-этажные); большие дома - от 150 кв. М и свыше.

Предлагаем дуплексы - большие каркасные дома с 2-мя входами на 2 семьи. Эти дома строятся сразу для нескольких хозяев и делятся на две половины, для обоих половин - отдельный вход.


Наши работы

Перейти в галерею


Комплектация

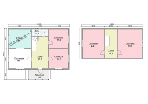
Площадь застройки: 104 м2
Длина: 8 м
Ширина: 12 м
Общая площадь: 149.4 м2
Исполнение Под ключ (с отделкой)
Фундамент Свайно-винтовой или ж/б сваи (рассчитываются отдельно).
Гидроизоляция фундамента Рубероид в два слоя.
Основание (обвязка) Из обрезного бруса 150х150 мм. 150х200 мм. согласно выбранной толщине утепления. Торцевая доска строганая 45х145/45х195+/-5 мм. согласно выбранной толщине утепления. Обработка антисептиком.
Цокольное перекрытие Строганая доска камерной сушки 45х145/45х195+/-5 мм. с шагом 590 мм. Обработка антисептиком.
Пол черновой Обрезная доска камерной сушки 20х100 мм.
Влаго-ветрозащита чернового пола Мембрана Ондутис А100.
Внешние стены Стойки каркаса из строганой доски камерной сушки 45х145/45х195+/-5 мм. с шагом 590 мм. Верхняя двойная и нижняя обвязки из строганой доски камерной сушки 45х145/45х195+/-5 мм. Разгрузочный ригель из строганой доски 45х145+/-5 мм. Укосины из строганой доски 20х95 мм.
Перегородки Стойки каркаса из строганой доски камерной сушки 45х95+/-5 мм. с шагом 590 мм. Верхняя двойная и нижняя обвязки из строганой доски 45х95+/-5 мм. Разгрузочный ригель из строганой доски камерной сушки 45х145+/-5 мм. Укосины из строганой доски камерной сушки 20х95 мм.
Сборка каркаса На гвозди.
Высота от пола до потолка Дом одноэтажный: 2,5 м. Дом с мансардой: 1-ый этаж- 2,5 м.
2-ой этаж (мансарда)- 2,3 м.
Дом в полтора и два этажа:
1-ый этаж 2,5 м.
2-ой этаж 2,4 м. в полутораэтажном доме
2,5 м. в двухэтажном доме.
Внешняя отделка стен Имитация бруса камерной сушки, сорт АВ, толщиной 17 мм. Монтаж через строганый брусок камерной сушки 45х45+/-5 мм. (вентилируемый фасад). Влаго-ветрозащитная мембрана- Ондутис А100.
Внутренняя отделка стен, перегородок Евровагонка камерной сушки, сорт АВ, толщиной 12,5 мм. по строганой рейке 20х40+/-5 мм. либо ГКЛ 12,5 мм.
Отделка потолка Евровагонка камерной сушки, сорт АВ толщиной, 12,5 мм. по строганой рейке 20х40+/-5 мм. либо ГКЛ 12,5 мм.
Пол чистовой Шпунтованная доска камерной сушки толщиной 35-36 мм. сорт АВ. по строганой рейке 20х40+/-5 мм. либо шпунтованная ДСП 16 мм. по разряженной обрешётке из строганой доски камерной сушки 20х95+/-5 мм.
Утепление (пол, потолок) Минеральная вата Knauf 150/200 мм. согласно выбранной толщине утепления.
Утепление стен Плитный утеплитель Rockwool, толщиной 150/200 мм. согласно выбранной толщине утепления.
Звукоизоляция перегородок Плитный утеплитель Rockwool, толщиной 100 мм.
Пароизоляция (стены, перегородки, пол, потолок) Плёнка Ондутис R70. Дополнительная герметизация нахлёстов/примыканий пароизоляционной плёнки клейкой лентой Delta.
Окна Двухкамерные стеклопакеты ПВХ белого цвета, профиль 60 мм. В комплекте: отливы, подоконники, москитные сетки.
Двери Входная- металлическая, утеплённая (Россия). Межкомнатные- филёнчатые.
Наличники на окна и двери Наличник деревянный, строганый, камерной сушки 70-90 мм. с двух сторон.
Лестница (при наличии второго этажа) Деревянная, одно или двухмаршевая. Перила- заводские резные, балясины- заводские точеные, устанавливаются стартовые точёные столбы. Ступени 40х200 мм. Тетива лестницы- 90х140 мм.
Крыша Двускатная, ломаная или вальмовая в соответствии с проектом.
Стропильная система Выполнена из строганой доски камерной сушки 45х145/45х195+/-5 мм. Шаг установки стропил 590 мм.
Обрешётка Выполняется из строганой доски камерной сушки толщиной 20х95+/-5 мм. Шаг крепления обрешетки 350 мм. Контробрешётка выполняется из строганого бруска камерной сушки 45х45+/-5 мм. Крепится по стропилам (вентиляционный зазор).
Подкровельная мембрана Ондутис А100
Кровельное покрытие (на выбор) Металлочерепица 0,45 мм. Цвет на выбор.
Фронтоны (при наличии) Каркас из строганой доски камерной сушки 45х145/45х195+/-5 мм. Обшиваются имитацией бруса камерной сушки, сорт АВ, толщиной 17 мм. Монтаж через строганый брусок камерной сушки 45х45+/-5 мм. (вентилируемый фасад). Влаго-ветрозащитная мембрана- Ондутис А100. Монтаж вентиляционных решёток.
Свесы крыши Ширина 400 мм. Подшиваются вагонкой камерной сушки, сорт АВ.
Терраса/балкон (при наличии) Устанавливаются опорные столбы из строганного бруса камерной сушки 140х140 мм.
Отделка потолка террасы/балкона Евровагонка камерной сушки толщиной 12,5 мм. сорт АВ.
Пол террасы/балкона Шпунтованная доска камерной сушки толщиной 35-36 мм. сорт АВ.
Ограждение террасы/балкона Перила- строганая доска. Балясины- точеные, фигурные. Либо ограждение в скандинавском стиле. Устанавливаются ступени у входа.
Допуск на геометрические параметры Составляет +/- 50 мм по длине с каждой стороны.
Допускается стыковка имитации бруса, вагонки и половой доски По всему периметру стен дома (если ширина и длина дома более 6,0 метров). Вагонки и доски пола в каждой отдельной комнате.
Допуски по имитации бруса, вагонке, доске +/- 5 мм.
В стоимость включена Доставка комплекта материала в радиусе 500 км. от г. Пестова Новгородской области и сборка дома на вашем участке.
Гарантия 5 лет.
Бытовка строительная 2,0х3,0 м. каркасно-щитовая. Стоимость 23000 руб. Остаётся на участке Заказчика.
Туалет 1,0х1,0 м. каркасно-щитовой. Стоимость 12000 руб. Остаётся на участке Заказчика.
Генератор Стоимость аренды на весь срок строительства 15000 руб. ГСМ за счёт Заказчика.

Постройка каркасного дома может осуществляться в нескольких видах: под усадку, когда сруб отстаивается на протяжении некоторого времени и полностью под ключ.

Зимой лучше всего строить в холодную погоду, чтобы каркас не отсырел, в теплое время года - не в дождливую.

Оптимальными для дачи или сада стали дома на винтовых сваях, на нашем сайте вы увидите одноэтажные и полуторатажные дома.

Если дом строится для ПМЖ (постоянного проживания), предлагаем надежные и очень теплые коттеджи и дома на ленточных и плитных фундаментах.

Имеется 2 размера утепления: 200 мм и 150 мм. Каркасные дома с утеплителем двести миллиметров получаются теплее, но несколько дороже.

Дополнительные услуги


Дом из каркаса , согласно плану 133 полутораэтажный с теплой двускатной строительной конструкцией крыши, обращает на себя повышенное внимание экологической чистотой, благодаря использованию OSB-плит, ваты базальтовой и минеральной, а это создает высокую теплоизоляцию, идеальный микроклимат в помещении. Нормы жилища составляют 8х12 м., суммарная жилплощадь - 149.4 кв.м.. Наша компания в кратчайшие сроки построит каркасник по персональному или типовому плану в Люберцах в оптимальное для вас время года и на выбранном вами типе грунта.

Популярные проекты


Каркасные дома 9х9 Каркасные дома 9х10 Бани из бруса 6х8
хит продаж
Тип:
Общая площадь: 2
3108600
от 2960600
хит продаж
Тип:
Общая площадь: 2
1901100
от 1810600
хит продаж
Тип:
Общая площадь: 2
1670100
от 1590600
Дома из бруса

Заказать или задать вопрос




Отзывы наших клиентов

Хочу выразить огромную благодарность коллективу компании за оперативность и высокий профессионализм на каждом этапе строительства нашего каркасного дома, который был возведен в кратчайшие сроки без малейших нареканий по качеству.

Раиса Т.
09.08.2025


Нам нужен был дом для постоянного проживания, и мы остановились на каркасной технологии от "Брус дома"! Аргументом стал короткий срок строительства и отзывы о теплосбережении, и мы не ошиблись. Дом построили за один сезон, въехали до холодов, первую зиму пережили прекрасно, стены держат тепло просто замечательно. Спасибо за качественный и теплый дом, в котором так приятно собираться всей семьей.

Анжелика Широкова
03.04.2025


Выбрал проект бани из каталога и немного доработал его под свои нужды: в реализации всё получилось даже лучше, чем на картинке, и функционально, и эстетически.

Эдуард Суханов
24.03.2025


Заказать или задать вопрос

Заказать звонок

Напишите нам
Здравствуйте! Отправьте нам вопрос или заявку в WhatsApp